Zur Übersicht

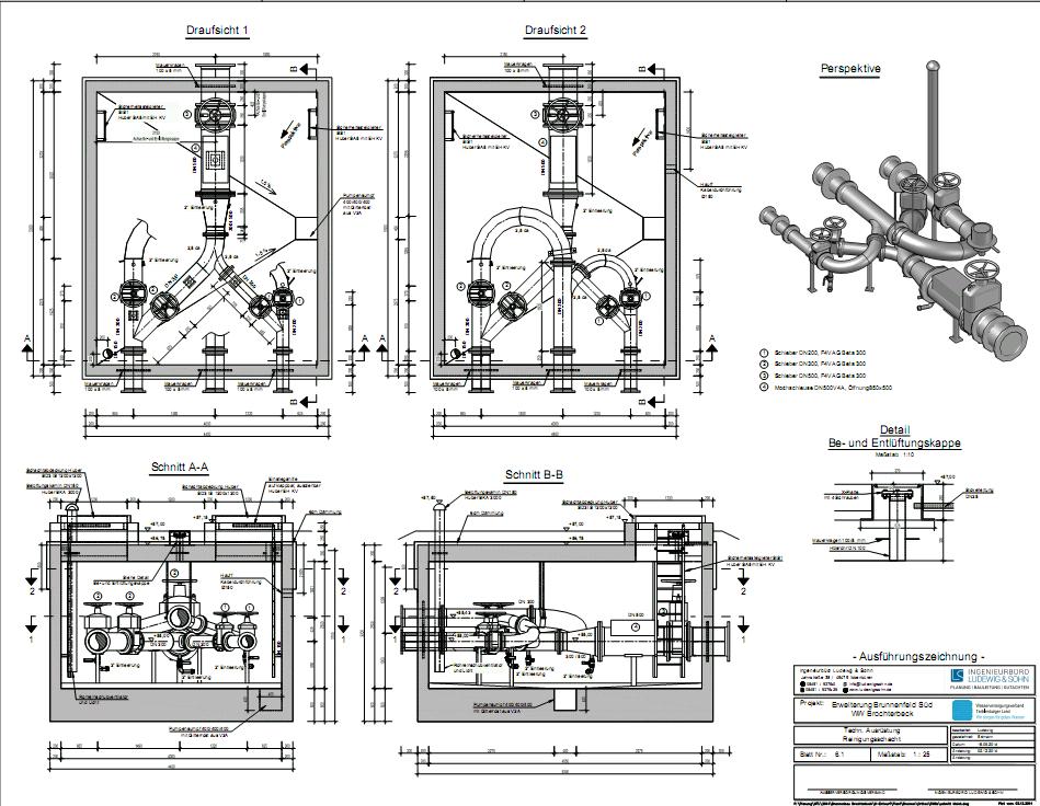
Wasserversorgungsverband Tecklenburger Land Erweiterung Brunnenfeld Süd, Neubau Reinigungsschacht

Bauer Beton Nürnberg erhielt von der Firma Köster AG den Auftrag zur Herstellung und Montage eines neuen Reinigungsschachtes für das Wasserwerk Brochterbeck.

 

Das Bauwerk ist mit einer aufwändigen Rohrleitungsinstallation aus Edelstahl DN 200, DN 300 und DN 500, sowie Anschluß einer Molchschleuse ausgestattet. Es ist Teil eines Brunnenfeldes mit sechs Trinkwasserbrunnen.

Die Planung des Gesamtkonzeptes und der Detailinstallation des Bauwerkes wurde vom Ingenieurbüro Ludewig & Sohn aus Ibbenbüren mit dem Ziel durchgeführt, die Trinkwasserversorgung des Wasserverbandes bei Reinigungsarbeiten ungehindert aufrecht zu erhalten.

Der Reinigungsschacht besteht aus nur zwei Bauteilen, mit einem Einzelgewicht von bis zu 50 to.

 

Durch diese Bauweise konnte die Bauzeit für das Bauwerk vor Ort auf 1 Tag begrenzt werden. Die Einbindung in das bestehende System konnte sofort durch Anflanschen der Leitungen an die werkseitig einbetonierten FF-Stücke durchgeführt werden.